Are you looking to redesign your bedroom but feeling overwhelmed by where to start? One helpful tool you can use is a floor plan template to visualize different layouts and furniture arrangements. These templates can be a great starting point for planning your dream bedroom.
Whether you’re a seasoned designer or just looking for some inspiration, free printable bedroom floor plan templates can be a valuable resource. With these templates, you can experiment with different configurations, furniture placements, and design ideas to create a space that fits your style and needs.
Free Printable Bedroom Floor Plan Templates
Free Printable Bedroom Floor Plan Templates
One of the benefits of using printable floor plan templates is the convenience and flexibility they offer. You can easily print them out at home or use them digitally on your computer or tablet. This allows you to play around with different layouts and designs without the need for specialized software.
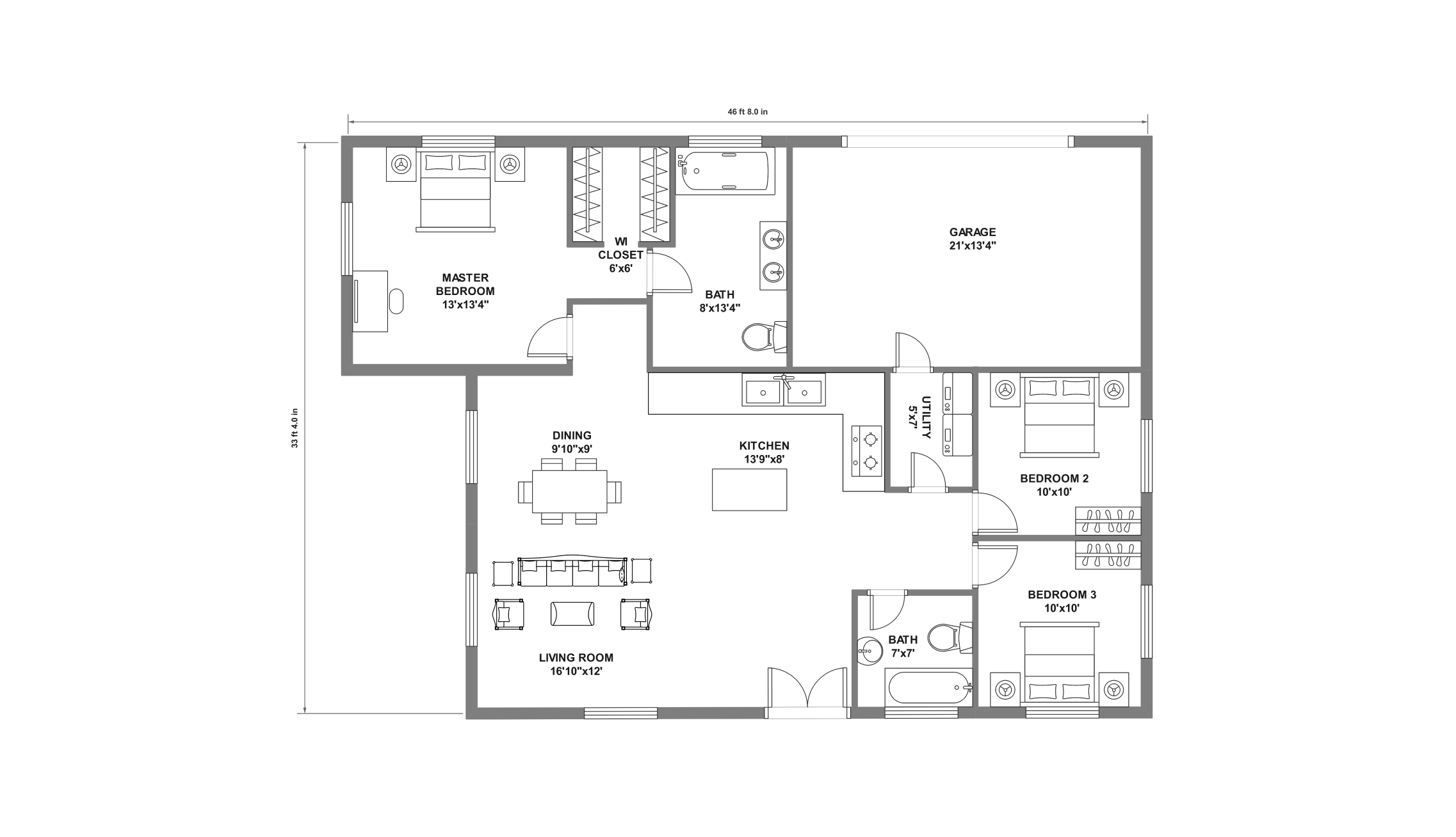
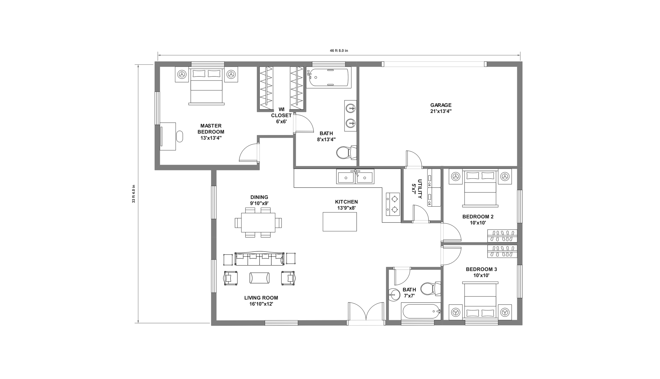
From simple square rooms to more complex layouts with closets and windows, there are a variety of free printable bedroom floor plan templates available online. You can find templates in different scales and styles to suit your preferences and create a visual representation of your ideal bedroom layout.
So, if you’re ready to take the first step towards designing your dream bedroom, consider using free printable floor plan templates. They can help you visualize your ideas, experiment with different layouts, and bring your vision to life. Start exploring these resources today and get inspired to create a space that reflects your personality and style.
Free Editable Bedroom Floor Plan Examples U0026 Templates EdrawMax
56 Free Floor Plan Templates Of Various Size Shapes Styles And
Free Editable House Plan Examples U0026 Templates EdrawMax
Free Printable Room Planner Brooklyn Berry Designs
Free Editable Bedroom Layouts EdrawMax Online



